【成約済】パークホームズ広島ボールパークレジデンス 6階




🏡 物件概要
- 所在地:広島市南区西蟹屋3丁目18-3
- 物件名:パークホームズ広島ボールパークレジデンス 606号室
- 賃料:------円/月
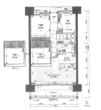
- 間取り:3SLDK
- 専有面積:74.63㎡(バルコニー12.53㎡)
- 築年月:2016年9月(築約8年)
- 構造:鉄筋コンクリート造(RC造)15階建の6階部分
- 最寄駅:JR山陽本線「広島」駅 徒歩10分
✨ 物件の特徴
- 築浅分譲マンション
- 2重サッシによる優れた防音性能
- マツダスタジアムが目の前
- 南向きで日当たり良好
- 全居室フローリング・収納豊富
- スマートキー・宅配ボックス・オートロック完備
- ミストサウナ・浴室乾燥・食洗機など充実の設備
💡 初期費用
- 敷金:2ヶ月分
- 礼金:1ヶ月分
- 保険:加入義務有(費用別途)
- 賃貸保証:加入要(日本セーフティー)
🔧 主な設備
- システムキッチン(3口ガスコンロ・浄水器・食洗機)
- バス・トイレ別(温水洗浄便座/オートバス/追焚)
- 室内洗濯機置場・浴室乾燥・ミストサウナ
- 省エネ給湯器・タンクレストイレ
- 複層ガラス・エレベーター・防犯カメラ
- TVドアホン・宅配ボックス・スマートキー
🔗 掲載先
- ハトマークサイト
- LIFULL HOME'S
- アットホーム
📌 その他
- 取引態様:媒介(転載不可)
- 管理方式:日勤管理
- 賃貸期間:2年(更新料なし)
- 環境:商業地
こちらの物件は、アクセス・住環境・設備のバランスが良く、広島駅近くでお探しの方には特におすすめです。内覧希望やご質問はお気軽にお問い合わせください。

